A Glossary of Victorian Military Terms

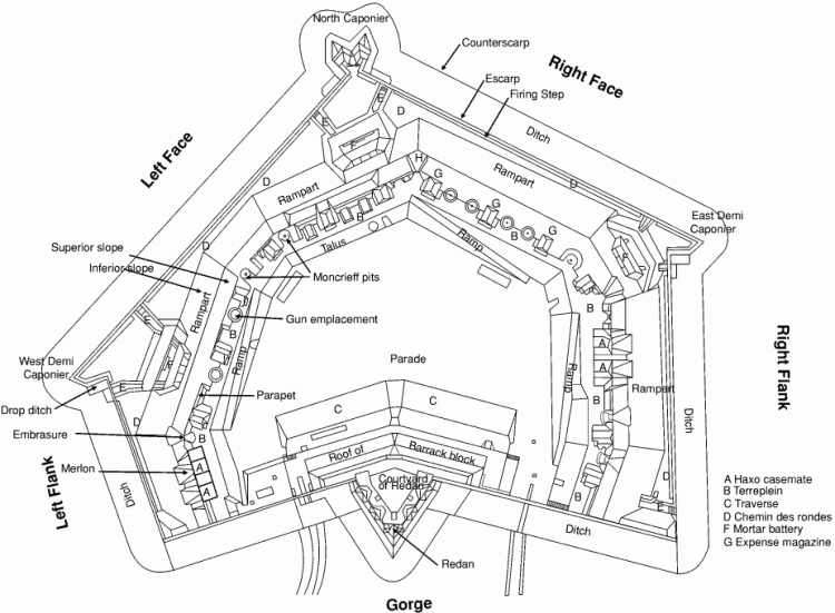
Plan of a Land Front Fort (Fort Nelson)

 

Fortification terms