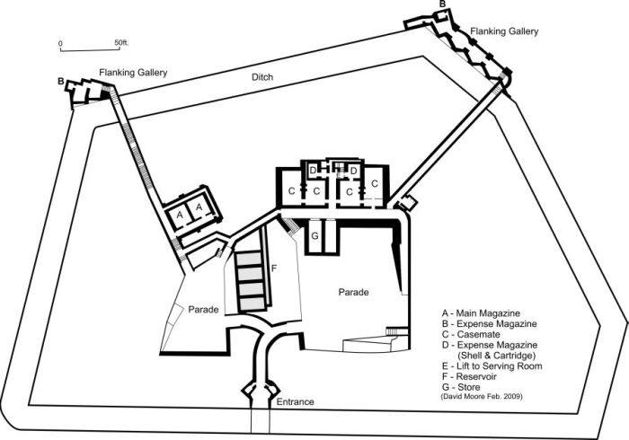
Fort Bridgewoods, Chatham, Kent

 

(click to enlarge)

 

Fort Bridgewoods